Design: Du Ci designs photography: Liu Lei @LLAP builds photography studio
The tide in room of old ocean of dining-room of chaffy dish of Shanghai PANDA 1731 lives
The Mount Hua road of completion often silvered coin 1731 numbers 1922 room, be located in Mount Hua road and sea route of the Huaihe River have sex place, it is the garden residence of a French formerly, through time change, after many flounder, offer as a gift already the mark that leaves each periods. 2020, xu of settle of panda chaffy dish collects Mount Hua means 1731 old foreign houses, design of DUTS Du Ci suffers owner to entrust, will old foreign house undertakes new position and transform, cooperate brand-new brand to upgrade, make its made dining room of brand-new chaffy dish of foreign room of PANDA 1731 garden.
Make its made dining room of brand-new chaffy dish of foreign room of PANDA 1731 garden..
The Mount Hua road of completion often silvered coin 1731 numbers 1922 room, be located in Mount Hua road and sea route of the Huaihe River have sex place, it is the garden residence of a French formerly, through time change, after many flounder, offer as a gift already the mark that leaves each periods. It is historical endless flow stays to this times the best " gift " , as if hiding a paragraph paragraph of time that belongs to Shanghai is private.
2020, xu of settle of panda chaffy dish collects Mount Hua means 1731 old foreign houses, design of DUTS Du Ci suffers owner to entrust, will old foreign house undertakes new position and transform, cooperate brand-new brand to upgrade, make its made dining room of brand-new chaffy dish of foreign room of PANDA 1731 garden. Change the room of House 1731 old ocean behind, also made gather meal, coffee, handle official bussiness, recreational the new-style lifestyle aggregate that waits for an organic whole, the bid of new tide life ground on Shanghai.
Classical method grace collides with what acme future feels
A lot of appearance still the old foreign house of elegance and talent actually inside outfit existence is worn a lot of problems, especially dimensional layout, already did not accord with the demand of modern life. The stylist hope that Du Ci designs looks be like old in old building, infuse avant-courier is full of the aesthetic element of artistic touch again, arouse architectural vitality afresh, this is design group most this true opinion, also be the incorporeal foundation of whole project.
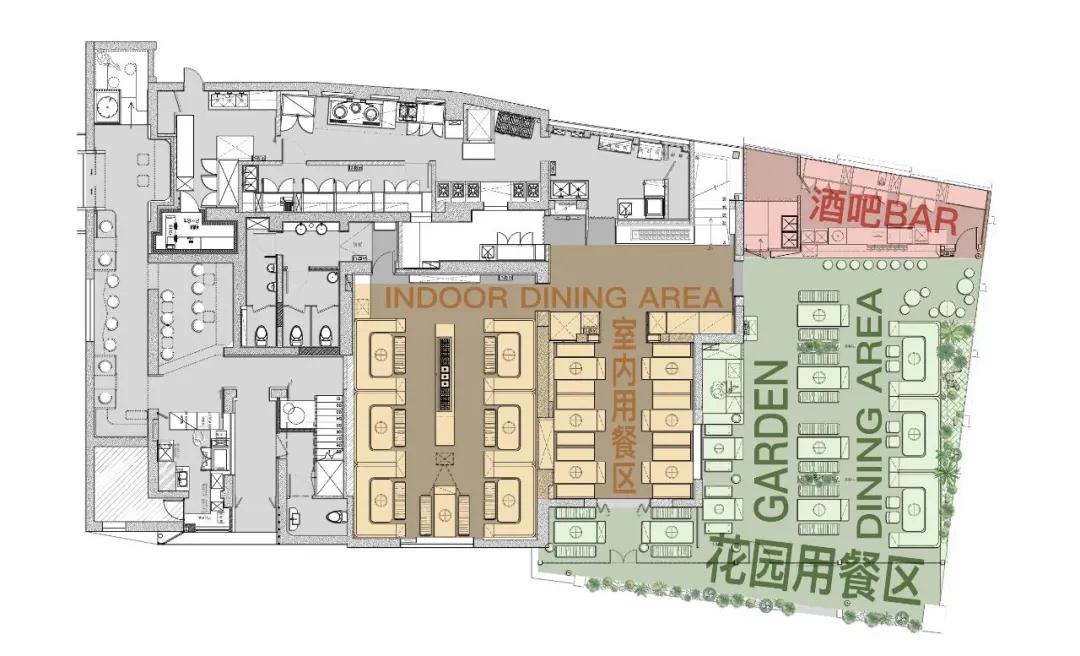
Dining-room cent is, layer and spaces of 2 the garden outdoor. Stylist withheld the arch of model court and Europe type pillar, combinative green plant and but adjustable canopy, a natural modes of life and relation to their environment is built in French garden, the satisfied space of regardless of the weather.
The broil in French garden heats up amorous feelings
In the interior space of core, design group is in this already over or across a century, weather-beaten and embedded one is full of tigidity in the foreign room that fills a narrative, have the metallic space of horniness more, the chaffy dish cate of heat letting broil and the metallic space that have Leng Jun extremely, in becoming scope of operation of this one party " glacial fire is double day " . After contented management demand and rationality, we hope each clients can have the have dinner experience of delicate grace, elegant enjoyment chaffy dish cate.
Stylist applied more architectural ability law, use imagine the structural way that pick, a focusing of 4.5 meters long stage of chaffy dish arrange at dimensional center, use odd side to hang pick way. Same design technique also applies the repast chair in the guest to go up, make a space more lightsome. Dimensional material is applied character on adoption stainless steel, the dumb smooth metal that the metal surrounds partly foils the delicate sense that gives city. Circular arc and the cold high line that coexist point-blank, below the apply colours to a drawing of lamplight, let whole repast environment be full of wet cruel and prospective feeling.
The confluence of room of Shanghai old ocean and Sichuan chaffy dish and dialog
The confluence of different culture and dialog bring more interest for building and space. The outdoors garden that takes in room of French old ocean has Sichuan chaffy dish, be very Cool and cozy job. The bar division in the garden, the designed depict that weigh a pen shine beautiful red, became superexcellent collocation with powerful chaffy dish. Elegant maritime amorous feelings and enthusiastic plain Sichuan culture, a culture in also making a vacuum blends " the song of ice and fire " .
Cross a space, set foot on the stair vacuum that log makes, as if entered a summary belt to confuse unreal to there is no lack of again the spatio-temporal channel that warmth feels character. The stair space with original cramped stricture is able to improve old foreign house, bring brand-new visual experience.
Illicit the room that enjoy a bag and " one person feeds " : The grace of chaffy dish and comfortable
2 of dining-room, by clever break up the space including a house to have distinguishing feature extremely, bag room can leave can close, satisfy a variety of likely operation requirement. Inside bag room, stylist was withheld original the housetop structure of old foreign house, inside the line of sight that formed a person, tradition and contemporary clever dialogue.
The footpath position of original ocean room, demolish coping, install scuttle and afforest, original dark space, handle light interest " one person is fed " space. No matter be the sweethearts that each other appeals to words from one's heart, or it is close lad, or it is simple " one person is fed " , urbanite can enjoy sunshine here, cate and god-given free time.
The footpath of original ocean room, demolish coping, install scuttle and afforest, treat original dark space light interest " one person is fed " space.
Side establishs a range on the west
The range establishs to
1F ichnography
2F ichnography
Project name: Chaffy dish of foreign room of garden of PANDA 1731 panda
Project place: Road of Shanghai Mount Hua 1731 House 1731
Project owner: Chaffy dish of panda old kitchen range
Project area: 517 square metre
The time that finish: In November 2020
Design a group: Du Ci is designed
Chair architect: Zhong Ling
Interior design: Eaves of Shi Wanggang, Su Jiangjian, 10 thousand beautiful, Xiang Zhe, Zhao Hui, Zhou Anjian
Project management: Zhang Wenjie
The space photographs: Liu Lei @LLAP builds photography studio












